Объект Гоголя

Металлические конструкции, прошедшие дробеструйную обработку и окрашенные полимером в 2 слоя.

В проекте реализовано:
- ограждения фронтальной линии участка
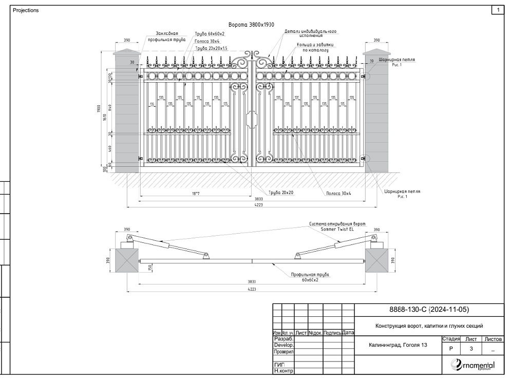
- распашные ворота и калитка
- замки и электрозащелки Locinox (Бельгия)
- доводчик Locinox Lion (Бельгия)
- автоматика ворот Sommer (Германия)

А также:
- ограждения балконов на фасадах и крыльце
- декоративные кованые медальоны на фронтонах фасадов
- декоративный навес со стеклом над зоной барбекю
Написать нам
Заполните поле Заполните поле Заполните поле Заполните поле