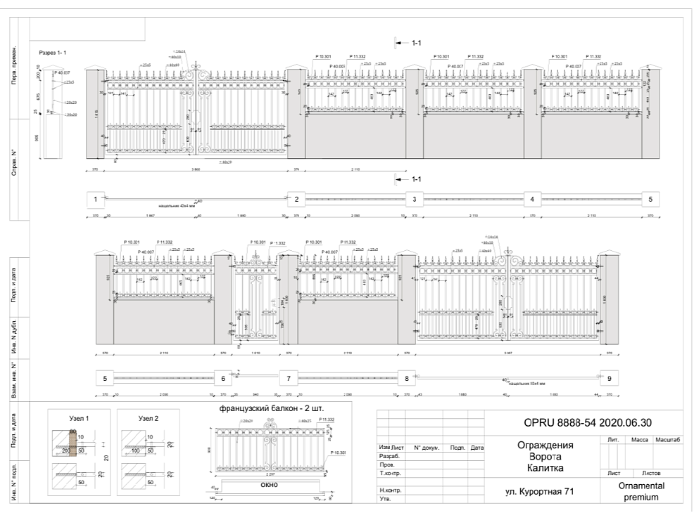
Объект Курортная 71

Металлические конструкции, оцинкованные методом горячего цинкования и окрашенные полимером в 2 слоя.

В проекте реализовано:
- ограждения фронтальной линии участка
- распашные ворота и калитка
- замки и электрозащелки Locinox (Бельгия)
- автоматика ворот Sommer (Германия)
- секции ограждения

А также:
- ограждения балконов на фасадах
Написать нам
Заполните поле Заполните поле Заполните поле Заполните поле