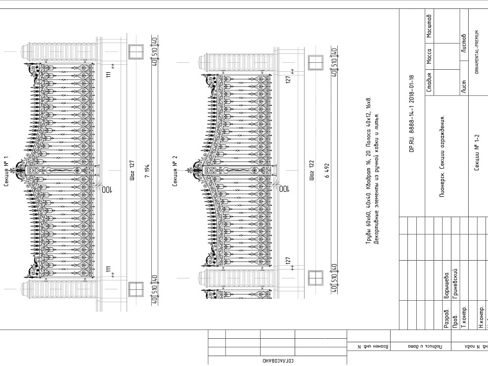
Объект Пионерск

Металлические конструкции, оцинкованные методом горячего цинкования и окрашенные полимером в 2 слоя.

В проекте реализовано:
- ограждения фронтальной линии участка
- распашные ворота и калитка
- замки и электрозащелки Locinox (Бельгия)
- автоматика ворот Sommer (Германия)
- секции ограждения

А также:
- ограждения балконов и крыльца на фасадах
- ограждения спуска к морю
Написать нам
Заполните поле Заполните поле Заполните поле Заполните поле